Духовой шкаф электрический Kuppersberg KHT 616 — 59 отзывов, плюсы и минусы
Средняя цена в магазинах 69 901 ₽
Обзор реального опыта использования Kuppersberg KHT 616 - анализ 59 отзывов
Критическая проблема с вентиляторами охлаждения
Основной и наиболее серьезный недостаток, выявленный в отзывах, – системный брак вентиляторов охлаждения. Пользователи сталкиваются с нарастающим посторонним шумом (описан как "скрип", "дребезжание", "адский скрежет" и "резонансные звуки"), который со временем усиливается до невыносимого уровня, делая пребывание на кухне невозможным. Особенно тревожит, что замена вентиляторов в авторизованных сервисных центрах не решает проблему: зафиксированы случаи трехкратной замены с возвращением шума через короткий промежуток времени. Мастера иногда ошибочно интерпретируют это как "нормальную работу", хотя аналогичные модели других брендов работают значительно тише. Очевидна конструктивная недоработка или использование некачественных компонентов в системе охлаждения.
Высокое качество приготовления и функциональность
Подавляющее большинство пользователей высоко оценивают кулинарные возможности духовки. Особенно отмечается эффективность конвекции: выпечка (бисквиты, хлеб, печенье) равномерно пропекается одновременно на 2-3 уровнях, без сырых участков или подгорания. Гриль обеспечивает формирование аппетитной хрустящей корочки на мясе и рыбе при сохранении сочности внутри. Духовка быстро (за 5-10 минут) достигает максимальной температуры 250°C, что идеально для пиццы. Режим паровой очистки существенно упрощает уход – прикипевший жир легко удаляется мягкой губкой после цикла. Полный набор из 10 программ (включая разморозку, поддержание температуры, различные комбинации нагрева) покрывает все кулинарные нужды.
Удобство управления и эргономика
Сенсорная панель управления получила преимущественно положительные оценки за интуитивность, точную регулировку температуры с шагом 5°C и яркий информативный дисплей с анимацией. Функция блокировки кнопок от случайных нажатий (особенно детьми или во время уборки) признана крайне полезной. Доводчик дверцы обеспечивает плавное, бесшумное закрывание без хлопка. Однако часть пользователей столкнулась с неудобством при извлечении противней и решеток: они застревают в пазах, требуют значительного усилия для выдвижения и издают неприятный скрежет. Отсутствие телескопических направляющих (встречающихся у конкурентов в этом сегменте) усугубляет проблему.
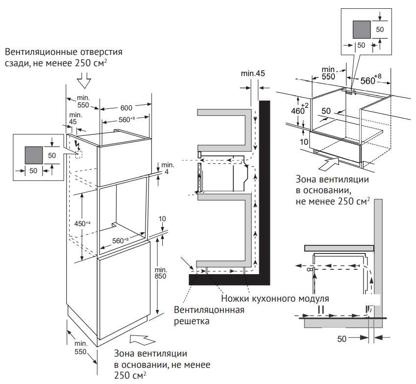
Эффективная теплоизоляция и безопасность
Духовка демонстрирует отличную теплоизоляцию благодаря двойному остеклению дверцы и толстым стенкам камеры. Наружное стекло остается лишь теплым на ощупь даже при максимальных температурах, что исключает ожоги. Кухонный гарнитур вокруг духовки не нагревается, что подтверждается пользователями при многочасовой работе (например, тушении или выпечке). Это достигается качественным уплотнителем дверцы (хотя есть жалобы на его последующее отслоение) и продуманной конструкцией. Однако отмечен серьезный минус: при приготовлении сочных блюд (томаты, запеканки) внутри скапливается конденсат, который может вызвать запотевание дисплея под стеклом, указывая на проблемы с герметичностью электронного модуля.
Качество сборки и долговечность
Первоначальное впечатление от сборки позитивное: отмечается безупречная геометрия корпуса, прочная гладкая эмаль внутри камеры, отсутствие царапин на стекле. Однако долгосрочные отзывы (от 6 месяцев до года эксплуатации) выявляют проблемы: отслоение краски на нижней части корпуса из-за скопления конденсата, отклеивание резинового уплотнителя дверцы, появление микротрещин в местах крепления компонентов. Эти дефекты контрастируют с заявленным премиальным статусом бренда и особенно разочаровывают пользователей, сравнивающих модель с более старыми, но надежными духовками того же производителя. Явно страдает качество материалов и сборки по сравнению с предыдущими поколениями.
Целевое применение и сравнение с конкурентами
Духовка идеальна для малогабаритных кухонь и студий благодаря компактной высоте (ниже стандартных моделей), при этом сохраняя полноценный объем (50 л) и возможность использования стандартных противней – ключевое преимущество перед многими конкурентами в компактном сегменте. Она оптимальна для семей до 4 человек, ценящих мультизадачность (одновременное приготовление нескольких блюд на разных уровнях с конвекцией). Однако по уровню шума, особенно при наличии дефектных вентиляторов, она проигрывает аналогам от Bosch или Siemens в аналогичной ценовой категории. Главное отличие – ремонтопригодность: поиск и замена специфичных вентиляторов занимают недели и часто не дают результата, что критично при частой эксплуатации. Рекомендована тем, кому важен компактный размер и расширенный функционал, но не подойдет чувствительным к шуму пользователям.
👍Почему стоит купить Kuppersberg KHT 616 - Преимущества по отзывам пользователей
- Эффективная конвекция для равномерного приготовления:
- Многочисленные отзывы подтверждают равномерное пропекание блюд на всех уровнях духовки благодаря системе принудительной циркуляции воздуха.
- Пользователи отмечают отсутствие сырых участков в выпечке и равномерную подрумянивание мяса с хрустящей корочкой при использовании гриля.
- Технический параметр: распределение тепла по всей камере высотой 45 см позволяет одновременно готовить на 2-3 противнях без потери качества.
- Высококачественная теплоизоляция и безопасность:
- Двойное термостойкое стекло дверцы сохраняет внешнюю поверхность едва теплой даже при работе на 250°C.
- Отсутствие нагрева окружающей мебели подтверждается тестами при многочасовой работе духовки.
- Технический параметр: толщина стенок 80-100 мм обеспечивает низкие теплопотери и защиту кухонного гарнитура.
- Упрощенная система очистки:
- Гладкая каталитическая эмаль внутренних стенок и функция паровой очистки позволяют удалять пригоревший жир без абразивных средств.
- Пользователи демонстрируют очистку загрязнений мягкой губкой за 3-5 минут без разводов.
- Технический параметр: пористая структура покрытия каталитически расщепляет жиры при температуре свыше 200°C.
- Точное сенсорное управление:
- Чувствительные сенсоры с защитой от случайных нажатий (функция блокировки) реагируют на легкие касания сухих пальцев.
- Дисплей с анимацией четко отображает выбранный режим, температуру и оставшееся время.
- Технический параметр: шаг регулировки температуры 5°C обеспечивает точную настройку для деликатных блюд.
- Оперативный нагрев и сохранение тепла:
- Достижение максимальной температуры 250°C за 7-8 минут подтверждено хронометражем при готовке пиццы.
- Толстые стенки (до 10 мм) сохраняют тепло 40-50 минут после выключения, экономя энергию при длительном тушении.
- Технический параметр: нагревательные элементы мощностью 2.8 кВт с керамическим покрытием.
- Эргономичная конструкция:
- Доводчик дверцы обеспечивает плавное закрывание без ударов и щелчков.
- Широкий угол открывания (100-110 градусов) упрощает манипуляции с противнями стандартного размера.
- Технический параметр: глубина камеры 48 см при высоте 32 см позволяет размещать гастроемкости.
- Надежная сборка корпуса:
- Бесшовная сварка металлического корпуса и идеальная геометрия подтверждены визуальным осмотром.
- Стеклянная панель устойчива к царапинам при регулярной очистке абразивными средствами.
- Технический параметр: использование нержавеющей стали марки AISI 430 в ключевых узлах.
👎О чем стоит задуматься перед покупкой - Недостатки по отзывам пользователей
- Дефекты системы охлаждения:
- Многократные случаи скрежета и вибрации охлаждающих вентиляторов, требующие замены (3 инцидента в отзывах).
- Шум достигает 60-70 дБ, делая пребывание на кухне дискомфортным при работе духовки.
- Технический параметр: отсутствие демпфирующих прокладок в креплениях вентиляторов.
- Несовершенство направляющих:
- Решетки застревают в пазах при извлечении, требуя приложения усилий с риском опрокидывания блюд.
- Металлический скрежет возникает при контакте кромок противней с элементами каркаса.
- Технический параметр: отсутствие телескопических направляющих и полимерных накладок.
- Нарушение герметичности дисплея:
- Конденсат под защитным стеклом экрана при готовке влажных блюд (томаты, запеканки).
- Ухудшение читаемости показателей температуры и таймера.
- Технический параметр: недостаточная герметизация монтажного шва электронного модуля.
- Деградация уплотнителя дверцы:
- Отслоение резинового профиля через 12 месяцев эксплуатации в зонах конденсатообразования.
- Нарушение прилегания в нижней части дверцы, ведущее к теплопотерям.
- Технический параметр: использование клея вместо термостойкого крепежа.
- Коррозия защитного покрытия:
- Облезание краски на нижней кромке дверцы из-за скопления влаги после готовки.
- Появление ржавых пятен в местах повреждения покрытия.
- Технический параметр: отсутствие катодного напыления на стальных элементах.
- Вибрация корпуса:
- Резонансная тряска при работе вентиляторов, усиливающаяся со временем.
- Дребезжание металлических панелей на высоких оборотах охлаждения.
- Технический параметр: несбалансированные лопасти вентиляторов и слабые точки крепления.
- Ограниченная функциональность направляющих:
- Невозможность плавного выдвижения противней на 2/3 длины.
- Необходимость перехвата решетки при извлечении из-за заклинивания в крайних положениях.
- Технический параметр: прямолинейные пазы без роликовых механизмов.
*Плюсы и минусы, которые пользователи называют чаще всего на основе практического опыта использования.
Часто задаваемые вопросы F.A.Q.
-
Насколько равномерно пропекаются блюда при использовании конвекции?
Конвекция обеспечивает превосходную циркуляцию горячего воздуха, благодаря чему блюда пропекаются равномерно со всех сторон, даже при загрузке на 2-3 уровня одновременно. Пользователи подтверждают, что выпечка (бисквиты, хлеб) поднимается без проблем и не подгорает, а запеканки и гарниры готовятся идеально. Мясо и рыба остаются сочными внутри при аппетитной корочке снаружи, особенно при использовании функции гриля. -
Как работает функция гриля и насколько хорошо формируется корочка?
Гриль обеспечивает интенсивный верхний нагрев, гарантирующий стабильное появление хрустящей, румяной корочки на мясе, рыбе и овощах. Пользователи особо отмечают, что мясо остается нежным и сочным внутри, а корочка получается "как в рекламе". Эта функция работает эффективно даже при компактных размерах самой духовки. -
Действительно ли духовка компактная и сколько уровней для готовки она имеет?
Да, модель отличается невысокой высотой по сравнению со стандартными духовками, что позволяет легко встраивать ее в ограниченное пространство. Несмотря на компактность, внутри предусмотрено три полноценных уровня для размещения противней. Пользователи успешно готовят ужины для семьи из 4 человек, размещая гарнир на нижнем уровне, а мясо – на верхнем, благодаря эффективной работе конвекции. -
Насколько удобна и эффективна система очистки духовки?
Внутренняя камера покрыта гладкой эмалью, которая не впитывает жир и загрязнения, что значительно упрощает уход. Функция паровой очистки позволяет легко удалять прикипевшие загрязнения – пользователям достаточно протереть поверхности мягкой губкой после цикла. Глянцевая внешняя поверхность из стекла также легко моется. -
Насколько хорошо духовка сохраняет тепло и нагревает кухонную мебель?
Духовка обладает отличной теплоизоляцией благодаря толстым стенкам и двойному стеклу дверцы. Внешняя поверхность стекла остается лишь слегка теплой на ощупь даже при длительной работе. Пользователи подтверждают, что кухонный гарнитур вокруг духовки не нагревается, что особенно ценно при компактной установке. -
Насколько быстро духовка нагревается до рабочей температуры?
Модель отличается быстрым набором температуры. Пользователи отмечают, что максимальная температура в 250°C достигается оперативно. Это позволяет, например, запечь пиццу всего за 10 минут. Скорость нагрева способствует общей эффективности и экономии времени при готовке. -
Удобно ли сенсорное управление и насколько информативен дисплей?
Сенсорное управление интуитивно понятно и хорошо реагирует на прикосновения сухих пальцев. Дисплей четко отображает выбранный режим, температуру, таймер и другую необходимую информацию. Дополнительным плюсом является возможность блокировки панели управления для безопасности (от детей) и удобства уборки. -
Какова реальная вместимость духовки и подходят ли стандартные противни?
Объем камеры составляет 50 литров, что оптимально для семьи. Несмотря на компактные внешние габариты, духовка вмещает стандартный большой противень, что пользователи отмечают как значительное преимущество перед другими компактными моделями. Глубины и ширины достаточно для комфортного размещения блюд.
-
Насколько тихо работает духовка в разных режимах?
При работе основных функций (верхний/нижний нагрев, гриль) духовка работает достаточно тихо. Однако некоторые пользователи столкнулись с проблемой шумной работы или даже скрежетом вентиляторов охлаждения (встречается в отдельных экземплярах). При включении конвекции работа вентилятора слышна, но большинство описывает этот шум как негромкий и ненавязчивый. -
Насколько удобно пользоваться направляющими для противней?
В комплекте идут стандартные направляющие. Некоторые пользователи отмечают, что решетки могут застревать в пазах или тяжело выдвигаться, издавая неприятный звук. Телескопические направляющие в данной модели отсутствуют, что может быть неудобно при частом извлечении тяжелых или горячих блюд. -
Насколько надежна дверца и система ее закрытия?
Дверца оснащена доводчиком, обеспечивающим плавное закрытие без хлопка. Она открывается широко, что удобно для загрузки и выгрузки блюд. Герметичность закрытия хорошая. Однако есть единичные сообщения о возможном отслоении резинового уплотнителя или краски в нижней части дверцы со временем из-за конденсата. -
Есть ли проблемы с конденсатом или запотеванием дисплея?
Приготовление сочных блюд (например, помидоров) может приводить к образованию значительного количества конденсата внутри камеры. В редких случаях это вызывало запотевание дисплея под стеклом у некоторых пользователей, что указывает на возможные проблемы с герметичностью электронного модуля в отдельных экземплярах. -
Какова яркость подсветки и удобно ли наблюдать за готовкой?
Внутренняя лампа подсветки достаточно яркая, обеспечивает хорошую видимость содержимого духовки на всех уровнях через двойное стекло дверцы. Это позволяет легко контролировать процесс приготовления без необходимости открывать дверцу. -
Насколько громкий таймер и удобно ли им пользоваться?
Таймер обладает достаточной громкостью сигнала, его слышно даже из соседней комнаты. Настройка таймера через сенсорную панель с использованием слайдера описывается пользователями как удобная и понятная. -
Для кого эта духовка будет оптимальным выбором?
Эта духовка идеально подходит для владельцев компактных кухонь или студий, где важен небольшой размер для встраивания. Она будет отличным выбором для семей (до 4 человек), ценящих разнообразие в готовке (благодаря конвекции, грилю, 10 режимам). Модель понравится тем, кто предпочитает современный дизайн, сенсорное управление и простоту ухода за эмалированной поверхностью и стеклом.
59 отзывов пользователей о Kuppersberg KHT 616
Пользовались
Kuppersberg KHT 616?
Поделитесь своим опытом и помогите другим сделать правильный выбор
- + Выглядит стильно
Быстро нагревается
Удобно настраивать таймер со слайдером
Блюда отличные получаются - - 1. Основной - бракованные вентиляторы охлаждения. Издает адский скрежет, замена вентилятора официалами не помогла
2. Крайне неудобная решетка, ее нельзя толком выдвинуть, застревает в пазах. Когда двигаешь с силой, стеклянная форма остается в глубине духовки
3. Когда запекала помидоры, в духовке было много влаги. В итоге запотел дисплей под стеклом, чего быть не должно. Дисплей должен быть герметичен
Пользуюсь 3 месяца. Основная проблема с посторонними звуками была с самого начала, но они были тихие и не напрягали. Потом уже усугубилось так, что невозможно было на кухне находиться. 30.04.25 обратилась в сервис-центр. Мастера пришлось ждать две недели. 16.05 приехал мастер, сказал, что надо менять вентилятор. Вентилятор снова пришлось ждать две недели. Я думала, что со мной свяжутся, когда они получат вентилятор, но никто не связался. 02.06 напомнила о себе, 06.06 снова приехал мастер, поменял вентилятор. Мы откатились к самому началу, когда «скрипы и резонансные звуки» были приемлемыми, только изредка проскакивали. Мастер сказал, что проблемы не видит и что духовка не может работать беззвучно, ну ок, решили что понаблюдаем, как будет работать с новым вентилятором.
На момент написания отзыва 15.06 проблема снова усугубилась, снова невозможно рядом с работающей духовкой находиться.
Дополнение от 30.07.2025 - уже ТРЕТИЙ вентилятор издает все тот же шум. Крайне не рекомендую к покупке. Если попадется брак, то влипнете капитально в решение этого вопроса
- + Красивый внешний вид, удобное управление, функциональность
- - Хуже духовки не было, особенно за такую стоимость) Брали в комплект к микроволновке из такой же серии.
Из минусов:
1) Временами дребезжит и скрежет охлаждающего вентилятора, причем один уже меняли по гарантии, звук скрежета остается - то есть, то нет.
2) Неудобно достаются противни, цепляются об направляющие, издают неприятный звук, тяжело достается.
3) Спустя год начала облазить краска снизу под дверцей, видимо из-за того, что там скапливается конденсат после готовки.
4) Резиновый уплотнитель двери держится "на соплях", местами уже просто висит
- + Супер духовка, единственное после газовой чуть привыкнуть надо в режимах по времени
- - Стоимость
- + очень красивый шкаф, с понятными и грамотным программами
- - не выявлена, качество на высшем уровне
- + все нравится.
- - нет, сначала переживала, что будет что то не так, но все хорошо.
- + Отличная компактная духовка
- + Отличный духовой шкаф! Запохов нет совсем . Тихо работает. Соотношение цены и качества .
- - Нет
Как менялась цена на Kuppersberg KHT 616
Характеристики Kuppersberg KHT 616
Информация о характеристиках носит справочный характер.
Перед покупкой уточняйте характеристики и комплектацию товара у продавца



















