Накопительный водонагреватель электрический Edisson ER 80V — 441 отзывов, плюсы и минусы
Средняя цена в магазинах 8 136 ₽
Что пользователи пишут в отзывах: ключевые плюсы и минусы Edisson ER 80V
*Проценты и ключевые выводы основаны на повторяющихся темах и сценариях, которые чаще всего упоминаются пользователями в отзывах.
Обзор реального опыта использования Edisson ER 80V - анализ 441 отзывов
Производительность и скорость нагрева:
Водонагреватель Edisson ER 80V демонстрирует неоднозначные результаты в скорости нагрева. Пользователи отмечают, что первоначальный нагрев полного бака занимает до 2.5–3 часов, что связано с умеренной мощностью ТЭНа. Однако последующий подогрев происходит быстрее благодаря эффективной теплоизоляции: за 8–9 часов температура падает всего на 2–3°C при окружающей температуре 18–20°C. Некоторые владельцы используют умные розетки для оптимизации энергопотребления, включая прибор 2–3 раза в сутки. При этом в экстренных случаях (например, утренний душ) вода достигает комфортной температуры за 20–30 минут. Для сравнения: модель Zanussi на 80 л, по отзывам, грела только половину бака за аналогичное время. Однако есть жалобы на снижение максимальной температуры при активном использовании — после нескольких лет эксплуатации нагрев может ограничиваться 50–60°C вместо заявленных 70°C.
Конструкция и удобство монтажа:
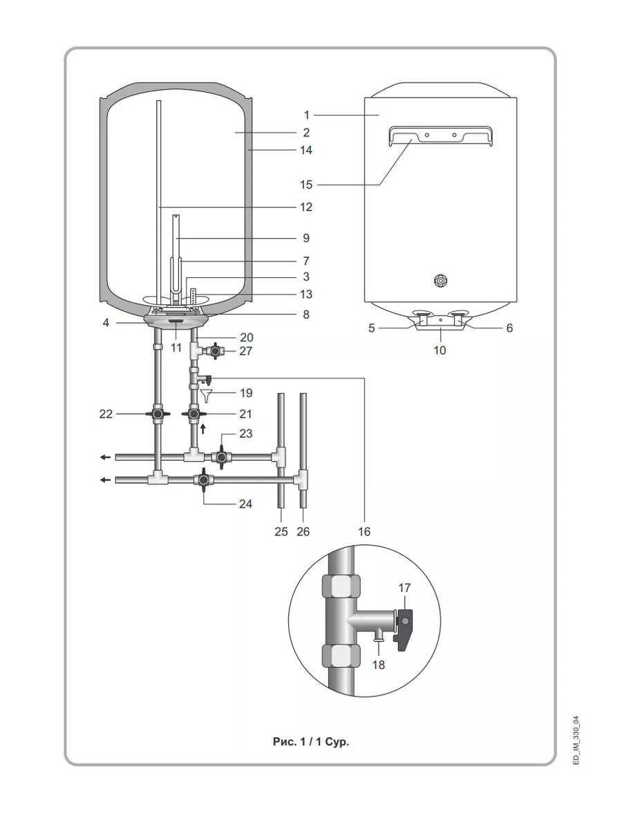
Ключевой проблемой конструкции стал крепёжный кронштейн. Владельцы сталкиваются с отсутствием готовых отверстий для фиксации на стене, что вынуждает сверлить их самостоятельно или использовать кронштейны от предыдущих водонагревателей (например, Thermex). Толщина металла бака вызывает нарекания: пользователи описывают стенки как "тонкие", что влияет на шумность при нагреве (слышно бульканье) и потерю тепла. Однако эмалевое покрытие внутренней поверхности и магниевый анод обеспечивают защиту от коррозии — при регулярном обслуживании бак служит 5–6 лет. Отдельно отмечается удобство модернизации: один пользователь установил тройник с краном для слива, другой — настенный смеситель для садового шланга, превратив прибор в источник воды для летнего душа и полива.
Надёжность и долговечность:
Срок службы варьируется от 3 месяцев до 10 лет в зависимости от условий эксплуатации. В регионах с жёсткой водой (например, при питании от скважины) ТЭН и бак быстро покрываются накипью: один пользователь вытряхнул 7 кг отложений после 4 лет использования. Отсутствие ежегодной замены анода приводит к коррозии —典型案例 — течь в днище через 8 лет. При этом в мягкой воде приборы работают стабильно: семья из трёх человек отмечает бесперебойную работу в течение 4 лет без обслуживания. Слабые места — пластиковые компоненты: патрубки, регулятор температуры с люфтом и ненадёжной фиксацией. У нескольких пользователей течь возникала в зоне подключения электрокабеля из-за заводского брака.
Эргономика и управление:
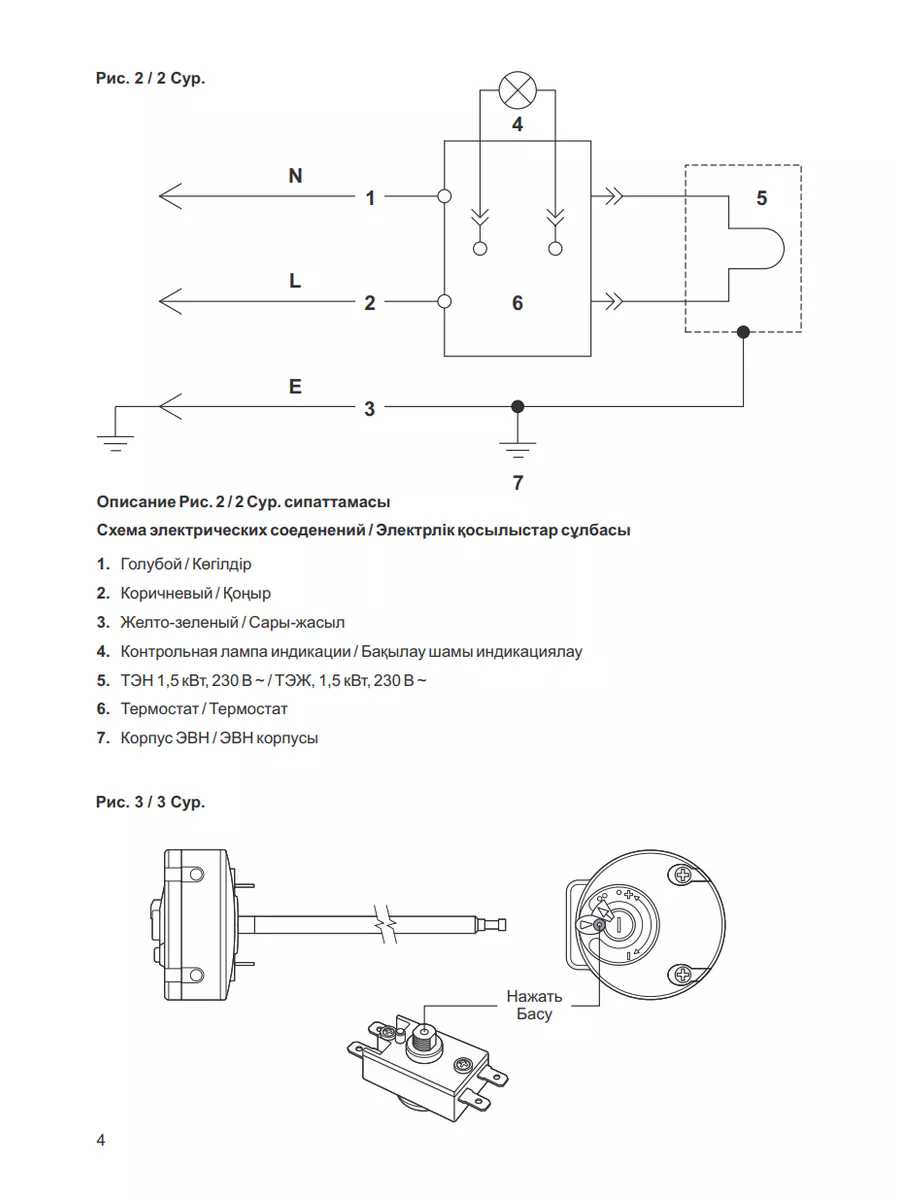
Прибор отличается минималистичным управлением — механический термостат без индикации температуры. Это осложняет точную настройку: пользователи ориентируются на "среднее положение" ручки. Регулятор описывается как "затруднённый" и "невнятный", с риском проваливания внутрь корпуса. Зато простота конструкции позволяет интегрировать водонагреватель в системы умного дома через внешние реле. Габариты оценены как компактные для 80-литровой модели: владельцы успешно размещают бак в санузлах площадью 4–5 м². Белый цвет и лаконичный дизайн гармонируют с интерьерами, хотя эстетика не приоритетна — многие устанавливают прибор в ниши или за декоративные панели.
Энергоэффективность и эксплуатационные расходы:
Прибор показывает умеренное энергопотребление — семья из пяти человек отмечает снижение коммунальных платежей по сравнению с централизованным ГВС. Это достигается за счёт хорошей теплоизоляции и рационального использования (например, нагрев только ночью по таймеру). Однако в холодных помещениях (неотапливаемые дачи) теплопотери увеличиваются: вода остывает на 5–7°C за 6–8 часов. Для компенсации приходится чаще включать ТЭН, что повышает расход электроэнергии. Владельцы рекомендуют использовать водонагреватель в тёплых комнатах с температурой выше 15°C. Стоит отметить, что при первом включении после долгого простоя (например, зимой на даче) прибор требует полного слива остатков воды для предотвращения замерзания.
Целевая аудитория и сценарии использования:
Edisson ER 80V оптимален для временного или сезонного применения: замены центрального ГВС на время отключений, обеспечения дач, съёмного жилья. Его выбирают семьи с детьми, где критичен стабильный доступ к тёплой воде для купания и бытовых нужд. При этом для постоянной эксплуатации в условиях жёсткой воды модель не подходит — срок службы сокращается до 1–2 лет. Отдельная ниша — пользователи, предпочитающие простоту ремонта: стандартные ТЭНы и аноды легко заменяются, а низкая цена оправдывает частую покупку новых приборов вместо обслуживания. Для коммерческого использования (мини-гостиницы, бани) водонагреватель малопригоден из-за ограниченной мощности и ресурса.
👍Почему стоит купить Edisson ER 80V - Преимущества по отзывам пользователей
- Большой полезный объем бака:
- 80 литров хватает на семью из 3-5 человек для душа, мытья посуды и стирки с запасом.
- Пользователи отмечают, что реальный объем соответствует заявленному, в отличие от некоторых конкурентов вроде Zanussi.
- Идеально для дачи или отключений ГВС на несколько дней.
- Хорошее сохранение тепла:
- После нагрева теряет всего 2-3°C за 8-9 часов при комнатной температуре 18-20°C.
- Вода остается горячей весь день даже при отключении от сети.
- Позволяет экономить электроэнергию, включая нагрев 2-3 раза в сутки.
- Низкая цена:
- За 5000-7000 рублей предлагает 80 литров объема без наворотов.
- Лучше дорогих брендов по соотношению цена/объем для временного использования.
- Многие покупают как замену после возврата денег за бракованные аналоги.
- Простое управление:
- Регулятор температуры с 5 позициями, автоматическое включение/выключение.
- Ребенок разбирается, нет лишних кнопок или дисплеев.
- Подходит для новичков без инструкции.
- Тихая работа:
- Не слышен в ванной или кухне даже во время нагрева.
- Нет гула или шума ТЭНа, в отличие от предыдущих моделей.
- Стоит в жилых помещениях без дискомфорта.
- Экономичность:
- Потребление 1.5 кВт не нагружает проводку, счета за свет приемлемы.
- Работает при низком давлении 0.5 бар, актуально летом.
- Не превышает ожидания по расходу для ежедневного использования.
- Компактные размеры:
- Вписывается в нишу или над ванной, глубина бака 27-28 см.
- Легче аналогов, вес 23 кг без воды.
- Подходит для квартир и дач с ограниченным пространством.
👎О чем стоит задуматься перед покупкой - Недостатки по отзывам пользователей
- Короткий срок службы:
- Часто течет бак через 1-3 года, особенно на жесткой воде без замены анода.
- Ржавчина, пробой ТЭНа, сгорание термостата через 13 дней или 3 месяца.
- Гарантия на бак требует ежегодного обслуживания мастером.
- Долгий нагрев воды:
- Полный нагрев до 75°C занимает 2.5-4.5 часа при 1.5 кВт мощности.
- Медленнее аналогов на 2 кВт, неудобно при первом запуске.
- На холодной воде из скважины выходит теплая, а не горячая.
- Проблемы с креплением:
- Нет отверстий в кронштейне, приходится сверлить или использовать старый.
- Крючки ненадежны для 100 кг с водой, требует усиления стены.
- Размеры в описаниях неверные, ширина 49.5 см вместо заявленной.
- Отсутствие защиты от тока:
- Нет встроенного УЗО, бьет током через кран через 1 месяц или год.
- Замыкания индикатора, ток по шнуру при течи.
- Требует отдельной установки УЗО.
- Низкое качество материалов:
- Пластиковые патрубки с заусенцами, люфтит регулятор.
- Тонкие стенки, сильная потеря тепла без утепления.
- Брак: вмятины, ржавчина, потрепанный анод из коробки.
- Нет индикатора температуры:
- Только лампочка включения, подбор по ощущениям.
- Нет термометра, сложно контролировать точную температуру.
- Регулятор не фиксируется четко, вращение затруднено.
- Требует обслуживания:
- Обязательная замена магниевого анода (M6) раз в год на жесткой воде.
- Чистка от накипи, иначе течет через 2 года.
- Сливной клапан слабый, меняют сразу.
*Плюсы и минусы, которые пользователи называют чаще всего на основе практического опыта использования.
Часто задаваемые вопросы F.A.Q.
-
Достаточно ли 80-литрового объёма для семьи?
Объёма 80 литров хватает на семью из 3-5 человек для повседневных нужд: душа, мытья посуды и гигиенических процедур. Некоторые пользователи отмечают, что при экономном использовании горячей воды хватает на 2-3 дня. Однако для наполнения ванны полностью объёма может быть недостаточно – максимум набирается "половина ванны" горячей воды. -
Как быстро нагревает воду этот водонагреватель?
Первичный нагрев полного бака с холодной воды до максимальной температуры (70°C) занимает около 2.5-3 часов. При последующем подогреве (когда бак не полностью остывает) время сокращается. Пользователи подчёркивают, что для комфортного утреннего душа достаточно включить прибор за 1.5-2 часа до использования. -
Насколько хорошо бойлер сохраняет температуру?
Теплоизоляция признана эффективной: при температуре воздуха 18-20°C вода остывает всего на 2-3°C за 8-9 часов. Это позволяет экономить электроэнергию, поддерживая температуру без постоянного подогрева. Некоторые отключают прибор на ночь и утром всё ещё имеют горячую воду. -
Какие есть особенности крепления к стене?
Основная проблема – отсутствие готовых отверстий в монтажной планке. Пользователям приходится самостоятельно сверлить крепёжные отверстия под анкеры или глухари. Кронштейн рассчитан на подвес на крючки, но многие считают это ненадёжным для заполненного бака и усиливают фиксацию. -
Требует ли водонагреватель регулярного обслуживания?
Да, особенно при жёсткой воде. Без замены магниевого анода и чистки ТЭНа от накипи срок службы резко сокращается: в отзывах описаны случаи, когда через 1-3 года ТЭН покрывался толстым слоем отложений (до 7 кг), а анод полностью разрушался. Рекомендуется ежегодное обслуживание. -
Насколько шумно работает устройство?
При работе прибор практически бесшумный – большинство пользователей не слышат процесс нагрева даже при установке в ванной комнате. Лишь в отдельных отзывах упоминается лёгкое бульканье или звук нагрева при тонких стенках бака, но это не считается критичным. -
Как долго служит этот водонагреватель?
Срок службы сильно зависит от качества воды и обслуживания. При мягкой воде и регулярной замене анода пользователи эксплуатируют прибор 5-10 лет. При жёсткой воде без обслуживания возможны протечки через 1-3 года. Средний срок, указанный в отзывах – 4-6 лет. -
Есть ли защита от накипи и коррозии?
В конструкции предусмотрен магниевый анод для защиты ТЭНа и внутреннего бака от электрохимической коррозии. Однако при жёсткой воде анод быстро разрушается, а без своевременной замены накипь активно нарастает на нагревательном элементе. Эмалевое покрытие бака устойчиво к ржавчине при отсутствии механических повреждений.
-
Удобно ли сливать воду на зиму?
Для слива рекомендуется установить дополнительный кран на выходной патрубок – это упрощает консервацию. Без такого крана приходится отсоединять водопроводную трубу. Пользователи, добавившие тройник с краном, отмечают, что слив становится быстрым и удобным. -
Можно ли использовать бойлер на даче с летним душем?
Да, это одна из частых сфер применения. Пользователи подключают к выходному патрубку садовый шланг через настенный смеситель, что позволяет организовать летний душ или полив тёплой водой. При сезонном использовании важно сливать воду перед зимой. -
Какие недостатки у системы управления?
Регулятор температуры выполнен из бюджетного пластика, имеет люфт и нечёткую фиксацию положений. Отсутствует индикатор текущей температуры воды – пользователь ориентируется только на примерный уровень нагрева по шкале термостата. Кнопки и переключатели работают, но выглядят ненадёжно. -
Насколько прочны соединения водопроводных патрубков?
Патрубки изготовлены из пластика или композитного материала, а не металла. При монтаже нельзя прилагать излишнее усилие – возможны повреждения резьбы. В одном отзыве упоминается металлический заусенец на штуцере, который пришлось стачивать напильником для устранения протечки. -
Как бойлер ведёт себя при скачках напряжения?
В отличие от моделей с электронным управлением, механический термостат этого водонагревателя устойчив к перепадам напряжения в сети. После отключения электричества настройки температуры не сбрасываются, что особенно ценится пользователями в дачных посёлках со старыми сетями. -
Можно ли интегрировать его в систему "умного дома"?
Да, благодаря механическому управлению. Пользователи подключают прибор через внешние умные розетки или реле для дистанционного включения по расписанию. Это позволяет греть воду только в нужное время (например, ночью по сниженному тарифу) и экономить электроэнергию. -
Для каких условий эксплуатации он не подходит?
Не рекомендуется для помещений с температурой ниже +10°C из-за высоких теплопотерь через тонкие стенки бака. Также плохо подходит для воды с высокой жёсткостью без дополнительной фильтрации и регулярного обслуживания – это приводит к быстрому выходу из строя.
441 отзывов пользователей о Edisson ER 80V
Пользовались
Edisson ER 80V?
Поделитесь своим опытом и помогите другим сделать правильный выбор
- +
За 15 лет не изменился
- -
Выход горячей воды плохо сделан, если ставить подводку. Пришлось сначала ставить кран, а потом к нему подводку. Намучился конечно
Стоял такой же. Потек тен. Можно было конечно почистить от накипи и поменять прокладку. Но купить новый, который стоит относительно недорого для меня было проще.
- + берем не первый раз его,с нашей водой хватает года на 2-2,5,но это вода
- - в этот раз пришел с неисправным клапаном,даже при перекрытии воды в кввртире,из спускного клапана вода течет,поэтому 4 звезды
- + Экономичная ценна подходит для редкого использования.
- - Не знаю что стало с производителем, в съёмной квартире потёк старый, точно такой же бак, не стал заморачиваться купил такой же. благо крепление и все остальное было (а так вам придётся докупать сантехнические принадлежности и кронштейн). У нового постоянно бежит с спускного клапана, у старого были редкие случаи, как конденсат капал. У нового же, бежит постоянно и если оставить на ночь, тазик средних размеров точно набегает. Можно решить вопрос шлангом в канализацию, но на постоянку вода будет капать и мотать счётчик.
- +
Один из самых дешёвых нагревателей объемом 80л
- -
Плохая теплоизоляция, корпус снаружи теплый, нет термометра на корпусе и не понятно можно ли идти мыться или жена спустила всю горячую воду, на кабеле нет УЗО, просто обычная китайская неразборная вилка
За свои деньги пойдет, уже год простоял и проблем нет, пока не потёк и тен не пробивает
- + Отличный и надёжный водогрей! И это несмотря на то, что он был из класса простеньких и бюджетных!
- - Ничего такого не нашёл!
Летом 2021 года водогрей прошёл ещё один этап модернизации. На этот раз на его выходные краны установил настенный смеситель, к которому присоединил садовый шланг. Это дало возможность не только поливать растения, но и принимать летний душ!
В июне 2022 года после наполнения водой я обнаружил течь в днище. Замечу, что много лет водогрей простоял на даче и я даже и слыхом не слыхивал про ежегодную замену магниевого анода. У нас там садоводство, дачники пользуются скважиной. Что же, знать теперь пора настала ломаться!
23 июня 2022 года я его отсоединил от водопровода и снял со стены, далее буду смотреть и решать, что с ним делать дальше. Заменил я его аналогичным водогреем чуть большей вместимости!
- + Быстро даже не ожидал
- - Пока не выевлино
- + быстро нагревает хватает
- - нет
- + хорошо греет покупкой доволен.
- - помятости в нижней части и по бокам
Как менялась цена на Edisson ER 80V
Характеристики Edisson ER 80V
| Общее | |
| Время нагрева воды до максимальной температуры : | 170 мин. |
| Линейка : | Glasslined |
| Способ нагрева : | электрический |
| Минимальная температура нагрева воды : | 20 °C |
| Максимальная температура нагрева воды : | 75 °C |
| Внутреннее покрытие бака : | эмаль |
| Напряжение сети : | 220 |
| Управление : | механическое |
| Особенности : | подключение к стандартной розетке |
| Системы защиты : | УЗО, обратный клапан, от включения без воды, от перегрева, предохранительный клапан |
| Режимы и функции | |
| Индикация : | включения, нагрева, температуры |
| Дополнительные функции : | ускоренный нагрев |
| Монтаж | |
| Установка : | настенная |
| Расположение : | вертикальное |
| Подводка : | нижняя |
| Присоединительный диаметр : | ½ |
| Размеры и вес | |
| Глубина : | 270 мм |
| Ширина : | 445 мм |
| Высота : | 751 мм |
| Вес : | 21.2 кг |
| Дополнительная информация : | мин. давление воды: 0.5 атм, макс. давление воды: 6 атм, ограничение температуры нагрева, тип электрического нагревательного элемента: трубчатый, класс влагозащиты IPX4 |
Информация о характеристиках носит справочный характер.
Перед покупкой уточняйте характеристики и комплектацию товара у продавца



























