Конвекционный газовый котел BAXI Nuvola-3 Comfort 240 Fi — 10 отзывов, плюсы и минусы
Средняя цена в магазинах 280 545 ₽
Краткие характеристики:
- тип отопительного котла: газовый
- количество контуров: двухконтурный
- размещение: настенный
- топливо: природный газ
- сжиженный газ
- тип камеры сгорания: закрытый
- тип питания: однофазное
- управление: электронное
- принцип работы газового котла: конвекционный
10 отзывов пользователей о BAXI Nuvola-3 Comfort 240 Fi
Пользовались
BAXI Nuvola-3 Comfort 240 Fi?
Поделитесь своим опытом и помогите другим сделать правильный выбор
- + полностью отвечает требованиям, соответствие цена/качество 100%
- - установка оказалась не такой простой, тяжеловат
- + Возможность полностью исключить открытую разводку труб. Все оборудование для работы ( насос, гидробак) расположены внутри. При включении горелки работает очень тихо. При выключенной горелке его вообще не слышно.
- - Пока не выявлено
- + Все плюсы многом знакомой модели Луна-3 плюс бойлер косвенного нагрева внутри котла.
- - Цена. Встроенный бойлер на 60 литров будет маловат для домов с большим водоразбором по ГВС
- + Надежно работает, встроенный бойлер, тихий, выполняет все поставленные задачи на 100%
- - полетел прессостат, оригинальный 5 т.р. спас Алик продал за 300 рублей. 60 литров бойлера не хватает зимой для полной ванной 200 литров 38 градусов полным потоком, только на 1/2, 2/3, летом нет проблем. Дорогой, но цена/качество нормальное.
- + Миникотельная всё в 1м(бойлер, насос и 2 расш бака)
- - К Пульту долго привыкать, сложное управление
- + Работает стабильно. Перестроили на сжиженный газ. Подключили к нему датчик уличной температуры и систему "Умный Дом". Все работает как запланировано. Воду успевает греть для душа без перебоев.
- - без датчика уличной температуры нет возможности изменять температуру теплоносителя.
Как менялась цена на BAXI Nuvola-3 Comfort 240 Fi
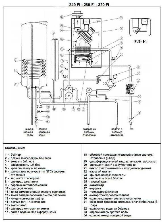
Характеристики BAXI Nuvola-3 Comfort 240 Fi
| Технические характеристики | |
| Принцип работы газового котла : | конвекционный |
| Основное топливо : | природный газ |
| Горелка : | газовая |
| Количество контуров : | двухконтурный |
| Минимальная тепловая мощность : | 10.4 кВт |
| Минимальная тепловая нагрузка : | 11.9 кВт |
| Максимальная тепловая нагрузка : | 24 кВт |
| Тип камеры сгорания : | закрытый |
| Отапливаемая площадь : | 240 м² |
| КПД : | 90.3 % |
| Управление : | электронное |
| Вариант установки : | настенный |
| Материал первичного теплообменника : | медь |
| Особенности : | воздухоотводчик, встроенный расширительный бак, встроенный циркуляционный насос, манометр, предохранительный клапан, разъем для подключения внешнего управления, термометр |
| Объем расширительного бака : | 7.5 л |
| Комплектация : | встроенный бойлер, встроенный вытяжной вентилятор, дисплей, комнатный термостат, пульт ДУ |
| Расход природного газа : | 2.78 м³/час |
| Расход сжиженного газа : | 2.78 кг/ч |
| Номинальное давление природного газа (мин.) : | 13 мБар |
| Номинальное давление природного газа : | 20 мБар |
| Минимальная температура теплоносителя : | 30 °C |
| Максимальная температура теплоносителя : | 85 °C |
| Максимальная температура в контуре ГВС : | 60 °C |
| Максимальное давление воды в контуре отопления : | 3 бар |
| Материал вторичного теплообменника : | нержавеющая сталь |
| Минимальная температура в контуре ГВС : | 5 °C |
| Производительность горячей воды при t 25°C : | 14 л/мин |
| Максимальное давление воды в контуре ГВС : | 6 бар |
| Топливо для автоматической подачи : | газ |
| Подключение | |
| Патрубок подключения газа : | 3/4" |
| Патрубок подключения контура отопления : | 3/4" |
| Диаметр коаксиального дымохода : | 60/100 мм |
| Размеры (ШхВхГ) : | 600x950x466 мм |
| Вес : | 70 кг |
| Диаметр дымохода : | 80 мм |
| Патрубок подключения контура ГВС : | 1/2" |
| Дополнительная информация : | производительность при 30% мощности 90.4%, расширительный бак контура ГВС 3.5 л, количество горячей воды за первые 30 мин при ΔТ = 30°C 390 л, номинальное давление подачи сжиженного газа (бутан) 30 мбар, съемная панель управления |
Информация о характеристиках носит справочный характер.
Перед покупкой уточняйте характеристики и комплектацию товара у продавца


























