Фильтр под мойкой AQUAPRO AP-600M — подробный обзор, плюсы и минусы на основе 47 отзывов
Средняя цена в магазинах 33 990 ₽
Что пользователи пишут в отзывах: ключевые плюсы и минусы AQUAPRO AP-600M
*Проценты и ключевые выводы основаны на повторяющихся темах и сценариях, которые чаще всего упоминаются пользователями в отзывах.
👍Почему стоит купить AQUAPRO AP-600M - Преимущества по отзывам пользователей
- ⭐ Главный плюс — ⚡Качество воды и очистка (80%):
- Пользователи единодушно отмечают, что после установки полностью исчезает накипь в чайнике, вода становится мягкой и приятной на вкус — разница с водопроводной ощущается с первого глотка. TDS-метр показывает падение с 450 до 30 ppm.
- В отличие от Гейзер Престиж, где многие жалуются на металлический привкус после замены картриджей, здесь вода остаётся нейтральной и свежей на протяжении всего срока службы мембраны.
- это главная причина покупки, и осмос справляется на 100% — никаких компромиссов по качеству.
- 👤 Это важно, если Вы хотите забыть о бутилированной воде и наслаждаться чистой водой без накипи в чайнике и кофемашине — особенно если у вас жёсткая вода с известкой.
- ✅ Стоит покупать если: нужна надёжная и недорогая система обратного осмоса для получения идеально чистой воды без лишних заморочек.
❌ Не покупайте если: не готовы мириться с большим расходом воды в дренаж или рассчитываете на кристально подробную инструкцию. - 💪 Надёжная сборка — Тайвань + мембрана США (45%):
- Покупатели со стажем (в том числе профессиональные мастера) подтверждают: корпуса и картриджи сделаны в Тайване, мембрана — американская, что исключает «лотерею» качества, типичную для дешёвого Китая. Фитинги и соединения не текут, резинки не рассыхаются годами.
- В отличие от Atoll A-550m, где корпуса у части пользователей начинали подтекать уже на второй год, здесь даже после 5–6 лет с затяжкой крана бачка проблем не возникает.
- снижает риск преждевременной поломки и даёт уверенность в долговечности системы.
- 👤 Это важно, если Вы не хотите каждый год менять фильтр из-за лопнувших колб или подтекающих соединений — особенно при установке в труднодоступном месте под мойкой.
- 🛠️ Простота обслуживания и универсальность (35%):
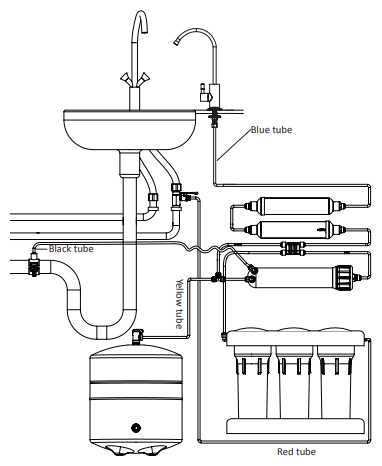
- Замена картриджей занимает буквально 15 минут, а модульная конструкция позволяет легко добраться до любого узла без демонтажа всей системы. Наличие прозрачной колбы первой ступени — удобный визуальный контроль загрязнения.
- В отличие от Prio Новая Вода Expert, где для замены картриджей часто требуется сливать воду и отключать весь блок, здесь каждая колба откручивается независимо.
- экономит время и нервы при ежегодной замене фильтров.
- 👤 Это важно, если Вы планируете обслуживать фильтр самостоятельно, без вызова мастера — особенно в условиях частого использования и большой семьи.
- 🎯 Важно, если: Вы готовы разобраться один раз и потом делать всё за 15 минут.
- 💰 Доступная цена (30%):
- Система стоит заметно дешевле многих аналогов при сопоставимом или лучшем качестве — пользователи отмечают, что отдавали за неё около 26 000 руб., что на 30–40% ниже Atoll A-550m.
- Картриджи тоже недорогие и есть в большинстве магазинов, что снижает стоимость владения.
- очевидное преимущество для бюджетно-ориентированных покупателей.
- 👤 Это важно, если Вы хотите получить максимум качества за разумные деньги и не переплачивать за бренд.
- ⚡ Работа при низком давлении (18%):
- Насос в комплекте позволяет стабильно набирать полный стакан за 6–7 секунд даже при давлении менее 3 атм, что важно для частных домов и квартир со старыми трубами.
- В отличие от Гейзер Престиж (без насоса), где без помпы вода течёт еле-еле, здесь напор комфортный с самого начала.
- для большинства с нормальным давлением насос лишь страховка, но для некоторых — must have.
- 👤 Это важно, если давление воды в вашем доме нестабильно или ниже нормы — насос решает проблему.
👎О чем стоит задуматься перед покупкой - Недостатки по отзывам пользователей
- ❗ Главный минус — 📋Плохая инструкция и сложности первой установки (50%):
- Многие пользователи жалуются на откровенно убогую инструкцию: одна книжечка на английском и «смешная» распечатка на русском с ошибками. Из-за этого даже те, кто ставил осмосы раньше, тратят лишнее время на разборку.
- В отличие от Atoll A-550m, где инструкция понятная и с цветными схемами, здесь приходится гуглить видео или использовать чужой опыт — для новичка это может стать сюрпризом.
- большинство справляются, но у некоторых установка может затянуться, а у невнимательных — возникнуть протечки из-за неправильного подключения клапана.
- 👤 Это важно, если Вы впервые сталкиваетесь с установкой системы обратного осмоса и рассчитываете на пошаговое руководство — приготовьтесь потратить час на изучение или вызвать мастера.
- ✅ Стоит покупать если: нужен качественный и недорогой осмос, и Вы готовы разобраться с установкой самостоятельно (или имеете опыт).
❌ Не покупайте если: у Вас нет опыта с сантехникой и нет терпения возиться — инструкция не поможет. - 💧 Огромный расход воды в дренаж (30%):
- Многие пользователи снимали показания и фиксировали, что за 90 минут работы уходит 19 литров воды — и это при накоплении всего нескольких литров чистой. Реальное соотношение может достигать 1:30.
- В сравнении с Prio Новая Вода Expert, где модельный ряд включает версии с пониженным дренажом (1:5–1:6), здесь стандартный осмос сливает значительно больше.
- для владельцев частных домов с септиком — существенный недостаток; для квартир с центральной канализацией — скорее вопрос экологии и совести.
- 👤 Это важно, если у Вас нет центральной канализации (септик, выгребная яма) — такой расход быстро переполнит ёмкость и приведёт к неприятным запахам.
- 🔩 Заводские дефекты и недокрученные соединения (16%):
- В нескольких отзывах упоминается, что из коробки клапан был подключен неправильно, а уголок на входе мембраны не докручен — из-за этого вода не шла на мембрану или подтекала. Требуется обязательная проверка всех соединений перед запуском.
- В отличие от Atoll A-550m, где такие проблемы встречаются реже, здесь они носят систематический характер.
- устраняется за 5–10 минут, но может напугать новичка и привести к протечке, если не заметить.
- 👤 Это важно, если Вы надеетесь на готовность «из коробки» — придётся потратить дополнительное время на осмотр и подтяжку фитингов.
- 🏗️ Хлипкая рама (20%):
- Некоторые владельцы отмечают, что металлическая рама, на которой закреплены колбы, недостаточно жёсткая — система «вибрирует» при работе насоса, а при небрежном монтаже может болтаться.
- В сравнении с Atoll A-550m, где рама крепче и продуманы точки крепления к стене, здесь приходится самостоятельно усиливать или искать дополнительную фиксацию.
- большинство покупают пару хомутов или дополнительных креплений и решают проблему за копейки.
- 👤 Это важно, если Вы крепите фильтр на стену шкафчика — шаткость может привести к дребезгу.
- 📦 Неполная комплектация (24%):
- Не хватает мелочей: силиконовой смазки для уплотнительных колец, фум-ленты для резьбовых соединений, в некоторых версиях — крана (хотя в комплекте обычно есть, но в дешёвых поставках — нет).
- В отличие от Prio Новая Вода Expert, где в коробке можно найти всё необходимое для подключения, включая ключи для тройника, здесь придётся докупать.
- большинство опытных установщиков имеют это в наличии; для новичка — досадное отвлечение.
- 👤 Это важно, если Вы рассчитываете на «всё в одном» — придётся докупать смазку и фум-ленту, что задерживает установку.
- 🔧 Проблемы с тройником для подключения (24%):
- Тройник неудобно затягивается: у него тонкие дужки, и при установке мешает кухонный кран — нужен специальный ключ с тонкими рожками.
- Сравнение с Atoll A-550m, где тройник более эргономичный и идёт в комплекте с удобным ключом, здесь придётся приноровиться.
- решается покупкой отдельного тройника или использованием рожкового ключа — но добавляет головной боли при первой установке.
- 👤 Это важно, если у Вас мало места под мойкой или тесно расположены трубы — стандартный инструмент может не подлезть.
*Плюсы и минусы, которые пользователи называют чаще всего на основе практического опыта использования.
47 отзывов пользователей о AQUAPRO AP-600M
Пользовались
AQUAPRO AP-600M?
Поделитесь своим опытом и помогите другим сделать правильный выбор
- + Хорошая вода. Работает при низком давлении воды. Отличная производительность — после ночи легко 10л. См. последнее фото
- - Коротковаты шланги (их надо отмерять и резать и по длине-впритык) не самая простая установка, нет комплектации без крана
Качество воды отличное, вода вкусная, накипи в чайнике нет.
Перед установкой мембраны, промываем мин 15, затем ставим мембрану, первые литров 10 сливаем. И миримся с тем что он постоянно журчит, сливая в канализацию. Это длится несколько часов. Заполняется бак, система выходит на проектную мощность. Потом всё нормализуется.
Пс. Поскольку у меня на входе в дом стоит фильтрация и умягчитель со смолой, то исходная для фильтра вода уже - не сильно загрязнена. Но есть известка, то есть умягчитель в работе своей не идеален., почему и установил фильтр под мойку.
- + Кран тяжелый, добротный.
- - Тройник для подключения к воде неудобный. Чтобы его прикрутить нужен ключ с тонкими дужками, иначе кран мешает его ухватить.
- - Фильтр подходит только если есть центральная канализация,для выгребных ям не подойдет.Очень много воды сливает в канализацию,за 1ч.30 мин. выходит 19 литров.
- + Решили заюзать осматическую систему, выбор пал на данный агрегат
- - После установки полет нормальный, пока
- + Одни достоинства 👍
- + Вкус воды изменился
- - Установка
- + Легкая установка, прозрачная колба мех. Очистки, американская мембрана
- - Не выявил
Как менялась цена на AQUAPRO AP-600M
Характеристики AQUAPRO AP-600M
| Общие характеристики | |
| Высота : | 38 |
| Ширина : | 42 |
| Глубина : | 47 |
| Число ступеней очистки : | 6 |
| Тип : | фильтр |
| Тип фильтра : | система "под мойкой" |
| Функции очистки : | обратный осмос, очистка от ржавчины, очистка от свободного хлора |
| Особенности : | подключение к водопроводу, прозрачный корпус |
| Тип воды : | жесткая, мягкая, холодная |
| Назначение : | бытовая техника |
| Функции : | минерализация, умягчение |
| В комплекте : | кран, накопительная емкость, сменные кассеты, фильтрующий модуль |
| Физические параметры | |
| Ресурс фильтрующего модуля : | 10000 л |
| Пористость : | 0.0001 мкм |
| Производительность : | 0.116 л/мин |
| Присоединительный размер : | 1/2 |
| Размеры : | 42x38x47 см |
| Вес : | 14.5 кг |
| Дополнительная информация : | производительность: 8-10 л/час |
Информация о характеристиках носит справочный характер.
Перед покупкой уточняйте характеристики и комплектацию товара у продавца













